Dieses kleine Haus ist mehr als ein Entwurf – es ist eine Haltung.
Zwei Vollgeschosse, klar gegliedert, kompakt gefügt. Ein Modernes Holzhaus, das Maß und Proportion zu seiner Sprache macht. Reduziert auf 70 qm Wohnnutzfläche entsteht eine Architektur, die Ruhe ausstrahlt und Beständigkeit vermittelt.
Das Typenhaus ist Teil einer neuen Generation von Gebäuden: seriell geplant, präzise gefertigt, variabel nutzbar. Seine klare Struktur erlaubt Wiederholung ohne Gleichförmigkeit – jedes Haus wird zum individuellen Ort, getragen von einem durchdachten System.
Die konsequente Planung spart Grundfläche und schärft den Blick für das Wesentliche: Funktionalität und Raumqualität statt Quadratmeter, für Atmosphäre statt Übermaß. Das horizontale Fensterband im Obergeschoss öffnet die Perspektive, lässt Licht und Landschaft einfließen und verbindet Innen und Außen zu einem fließenden Ganzen.
Gefertigt in moderner Holzbauweise, atmet das Haus die Qualitäten des Materials – Wärme, Natürlichkeit und Nachhaltigkeit. Holz schafft Geborgenheit, reguliert das Raumklima und fördert Wohlbefinden.
Ein Haus, das weniger will – und dadurch mehr gibt:
Klarheit, Komfort, Klimafreundlichkeit.
Ein Archetyp des modernen, seriellen Holzbaus – kompakt, effizient und zeitlos schön.
Basics des MIKRO
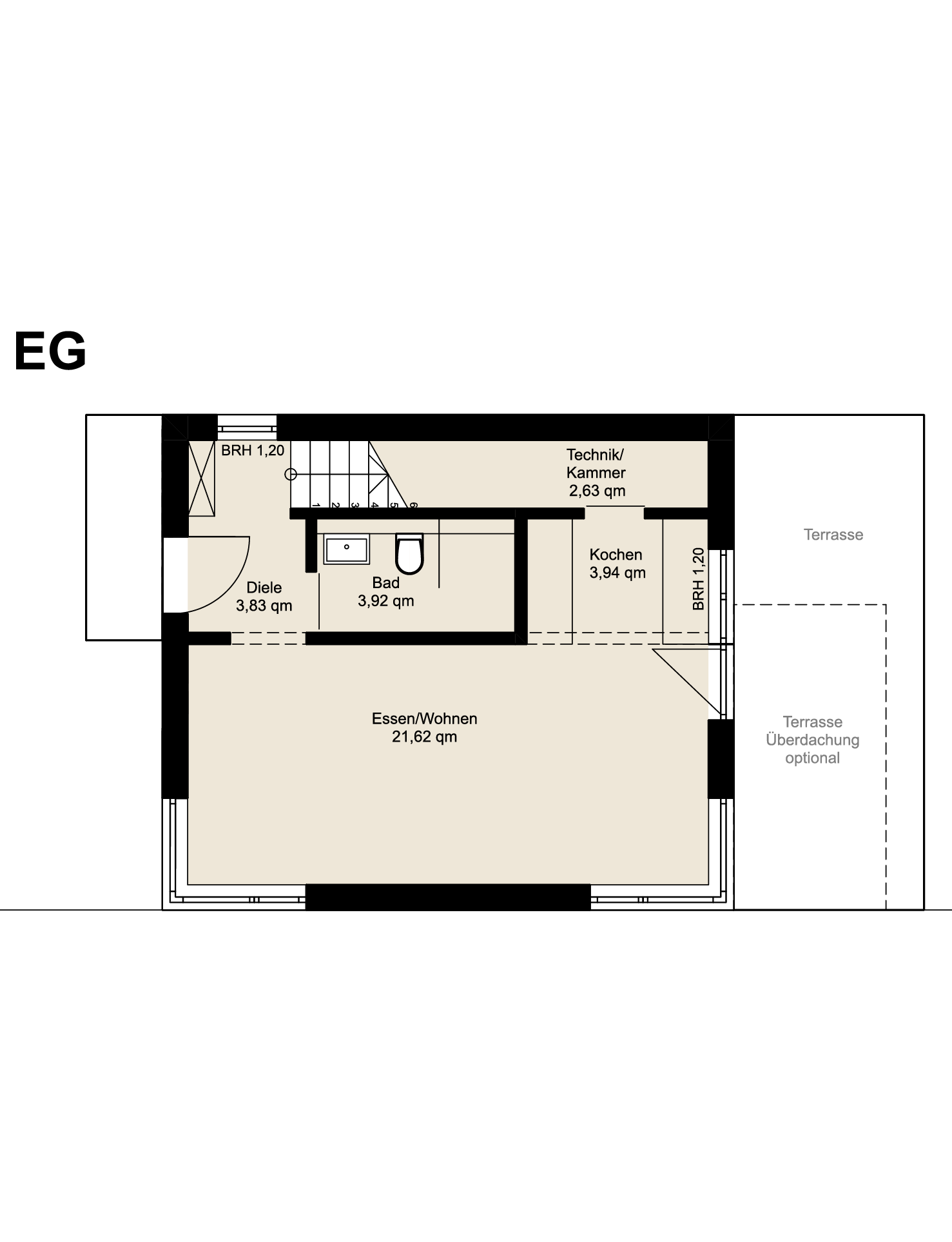
- Wohnen auf bis ca. 70 m² Wohnnutzfläche
- 2 Vollgeschosse, Außenmaße 6,50 x 7,50 m
- Höhen: 2,50 im EG; bis zu 3,80 m im OG (First)
- Fassade: frei wählbar
- Beste Energiewerte (Effizienzhaus 40 fähig)
- 3-fach verglaste Holzfenster mit modernen Profilen
- Satteldach: Kniestock 2,25 m, moderne Flachdachziegel
- erweiterbar mit Schuppen, Carport
Weitere Infos auf Anfrage! Bei Interesse melden Sie sich
hier


